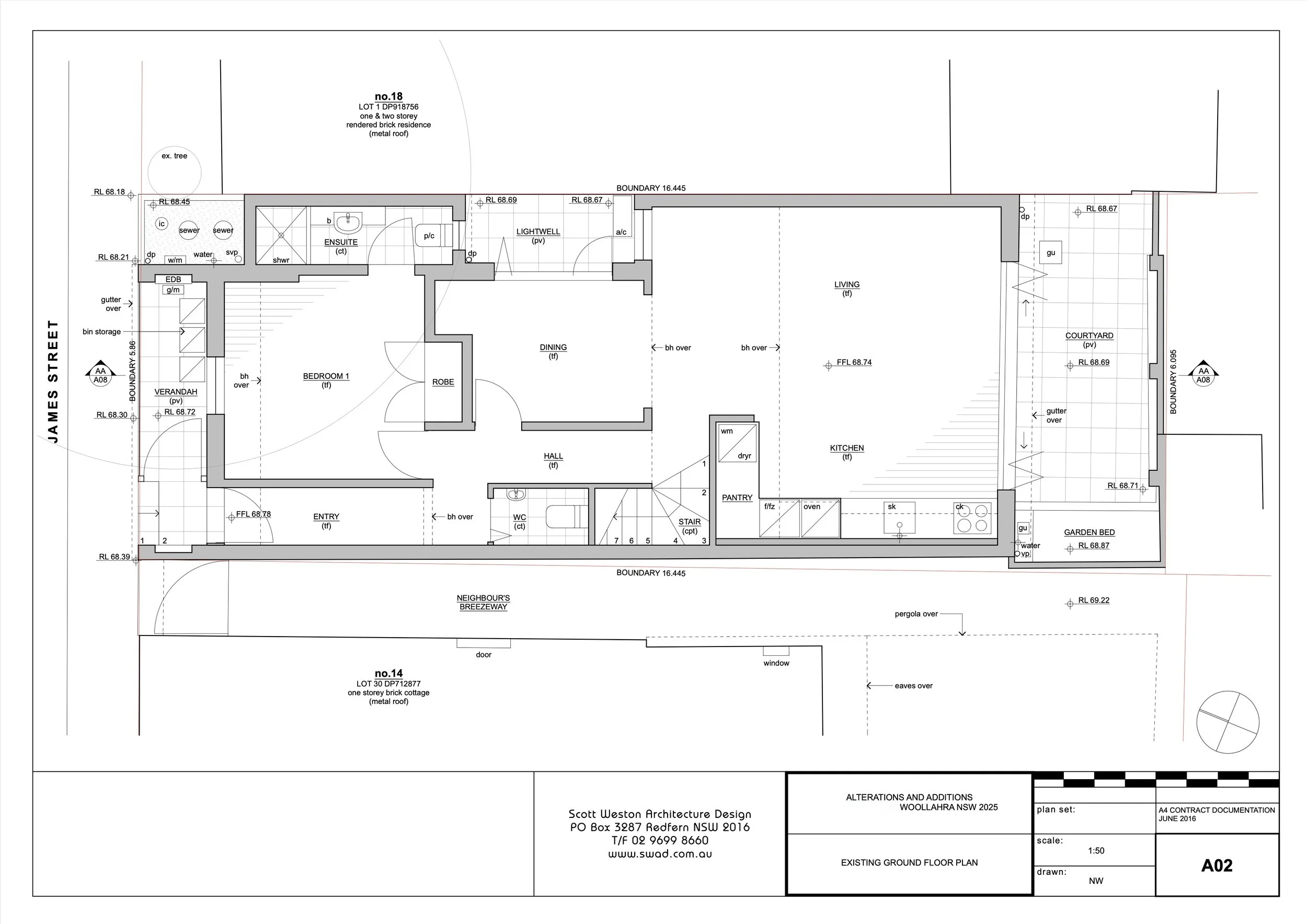
The smallest workers cottage in all of Woollahra, where the western breezeway was reclaimed and built as a two-storey glass and steel spine allowing northern light to fully enter the ground floor kitchen, living and dining open plan space . We swapped the entry door over to the breezeway side and put a glass shower capsule where entry door once stood. These simple design changes improved functionality and eliminated unnecessary lengthy hallways and corridors to this compact cottage.
WOOLLAHRA COTTAGE
alterations & Additions
Existing single storey freestanding workers cottage in the quaint backstreets of Woollahra.
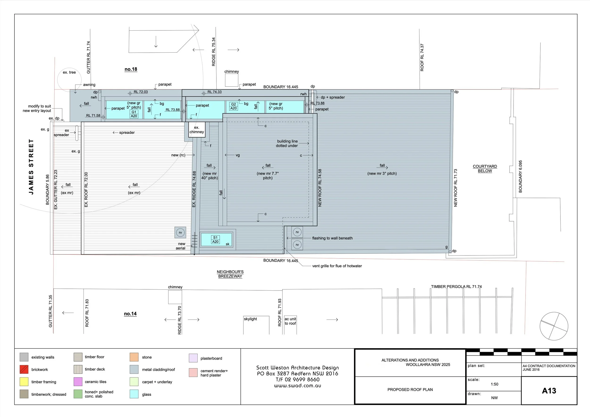
Demolish the entire cottage, only retain front facade and front ridge roof.
Reclaim the breezeway with a steel and glass double height rectangular modern addition to bring north light to the rear of the property.
Provide open plan kitchen living and dining to the ground floor with a simple linear wall of storage. Guest bedroom and ensuite to the street frontage.
Compact rear courtyard with built-in bbq.
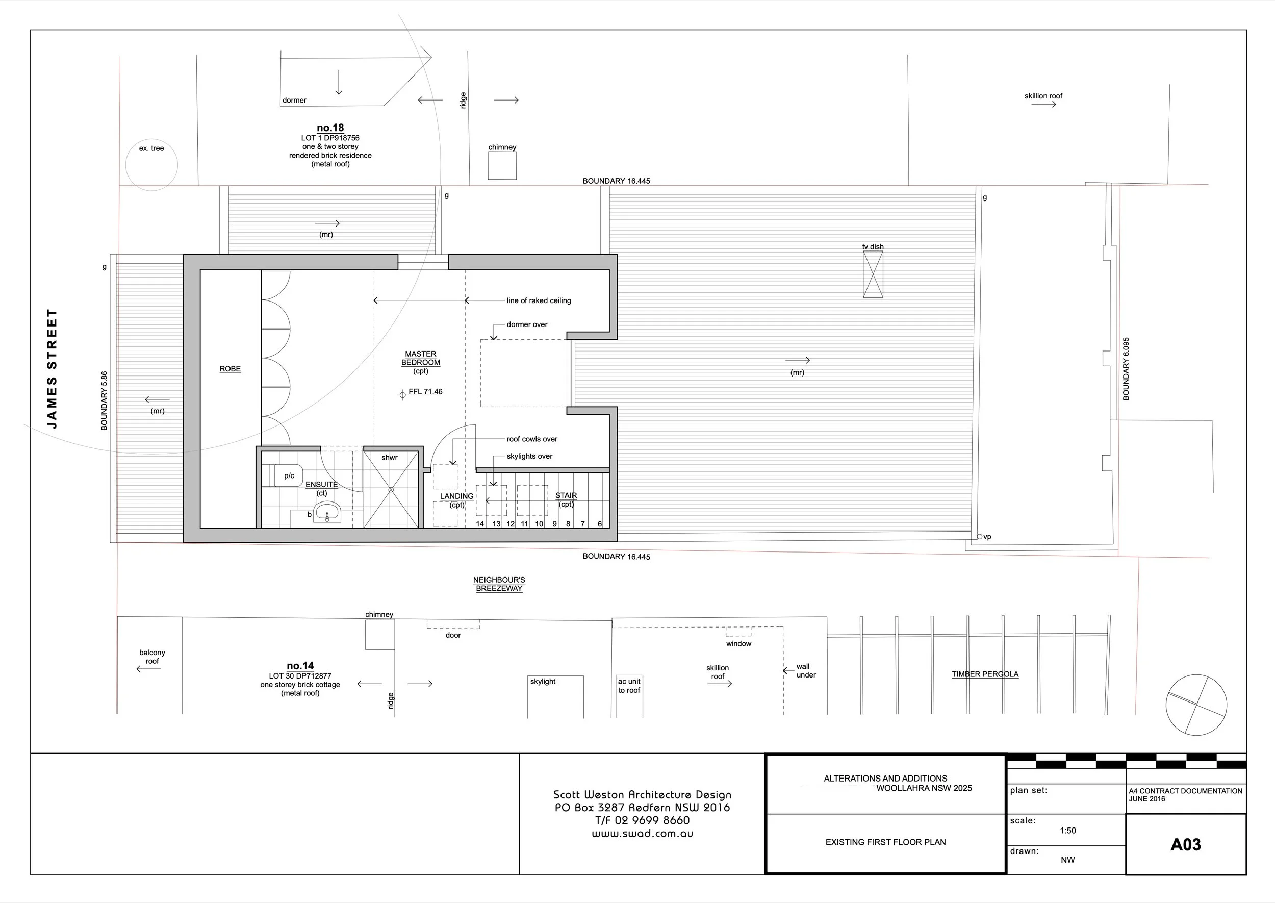
First floor addition of master bedroom, ensuite and walk-in robe.
Construction commences July 2016
Practical Completion March 2017
