Gentrification of Redfern was well underway while the old chocolate factory (then a tailoring business) in Redfern lay derelict, the local dumping ground for locals for many years until Newcastle siblings inherited the site. Subdivision well underway our task was to design and build off the existing brick foundations two separate 3-storey terraces with a northern orientation with bedrooms balconies and ground floor courtyards finished in breezeblock. Twin terraces with the same planning principles were overlaid with 10 distinct material and finishes differences from glazed grey bricks, breezeblock patterns through to colour blocked bathrooms. Same same but different just like the siblings who spotted the real estate opportunity and saw the real estate potential in this inner-city suburb.

TWINNING Terraces

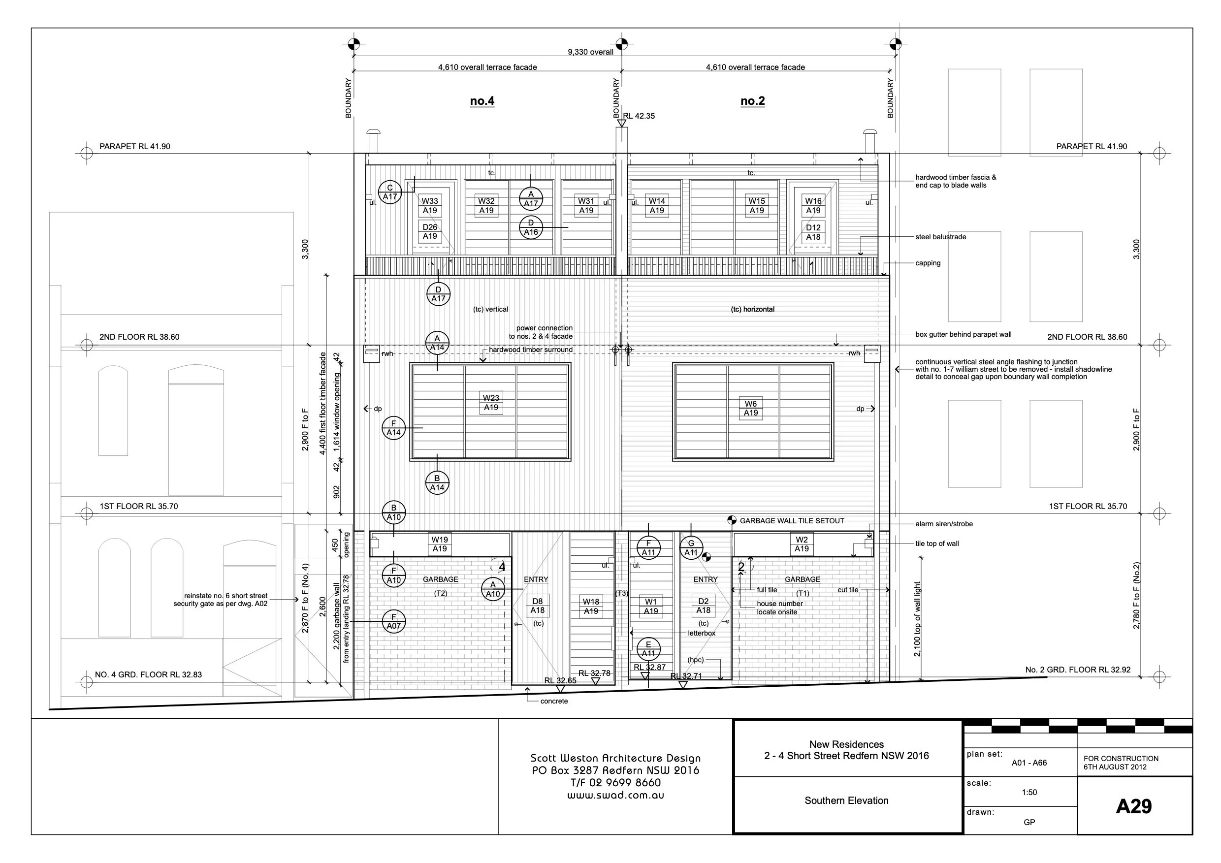
short street redfern

New twin terraces.

Ground floor open plan kitchen, dining, living, north facing courtyard with concealed drying yard and laundry.

First floor two bedrooms with a balcony to north side and a shared bathroom.

Second storey master bedroom, walk-in robe and ensuite. External north and south facing balconies.

Construction August 2012.

Practical Completion September 2013.

Construction cost per terrace $650,000.00

Sold in 2021 $2,130,000.00