A single-storey workers cottage currently demolished to the rear of the home while we patiently await the ‘plan of delimitation’ registration at the Land Registery Services. The new construction build consists of grey toned stackbond brickwork with an open plan ground floor kitchen, living, dining with artisanal steel and blackbutt staircase up to master bedroom and ensuite. Angled glass skillion roof over the staircase provides high level north light, a southern glass skillion form provides additional reflected light over the kitchen and island unit. Beautifully detailed bespoke joinery overlaid in rich jewel tones of irish green marbles, blue green terrazzos, hand made green glazed tiles, walnut veneers and laminate work surfaces appear throughout the home.

Architectural Study Model of the CDC approved refurbishment works.

Approved CDC Architectural Drawings from inner-west council

Kitchen Materials and Finishes

Rendered images of the projects Materials and Finishes

LILYFIELD

alterations & Additions

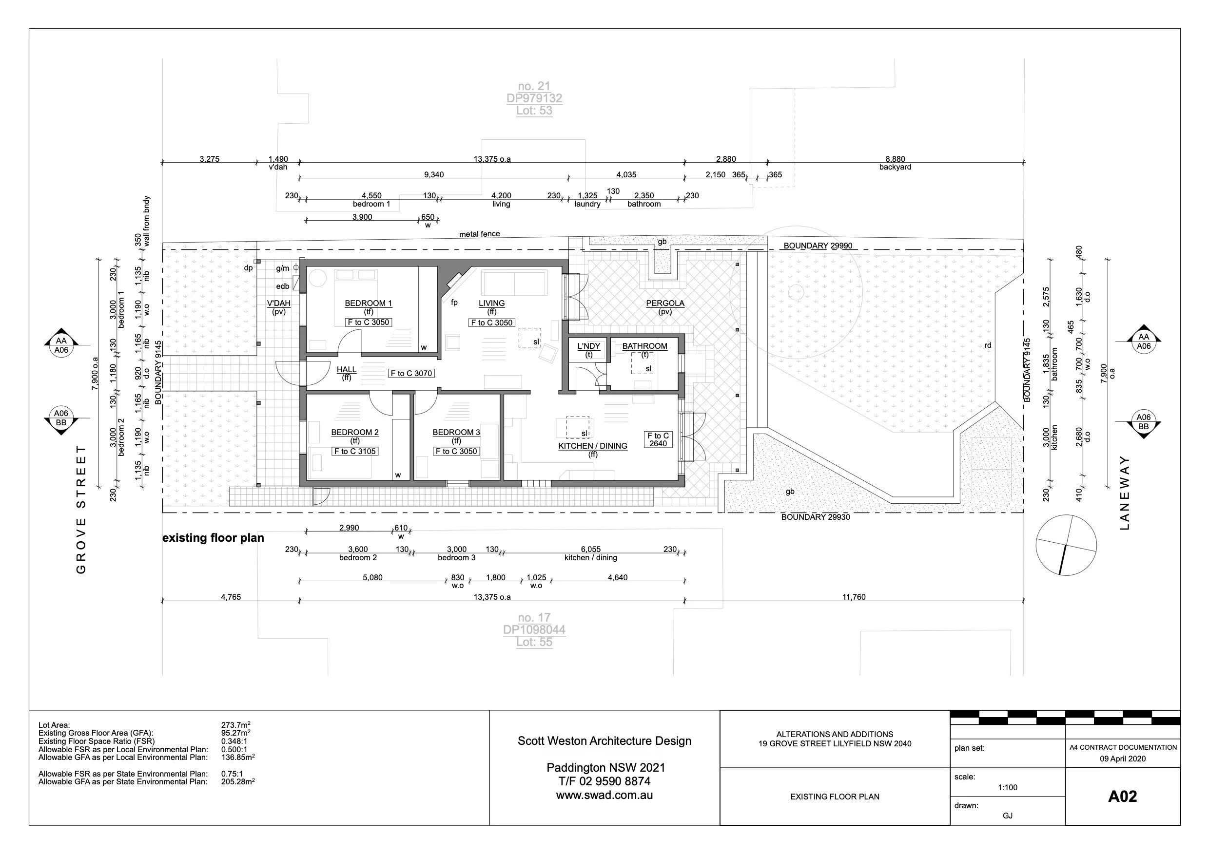
Free standing workers cottage.

Demolish rear addition.

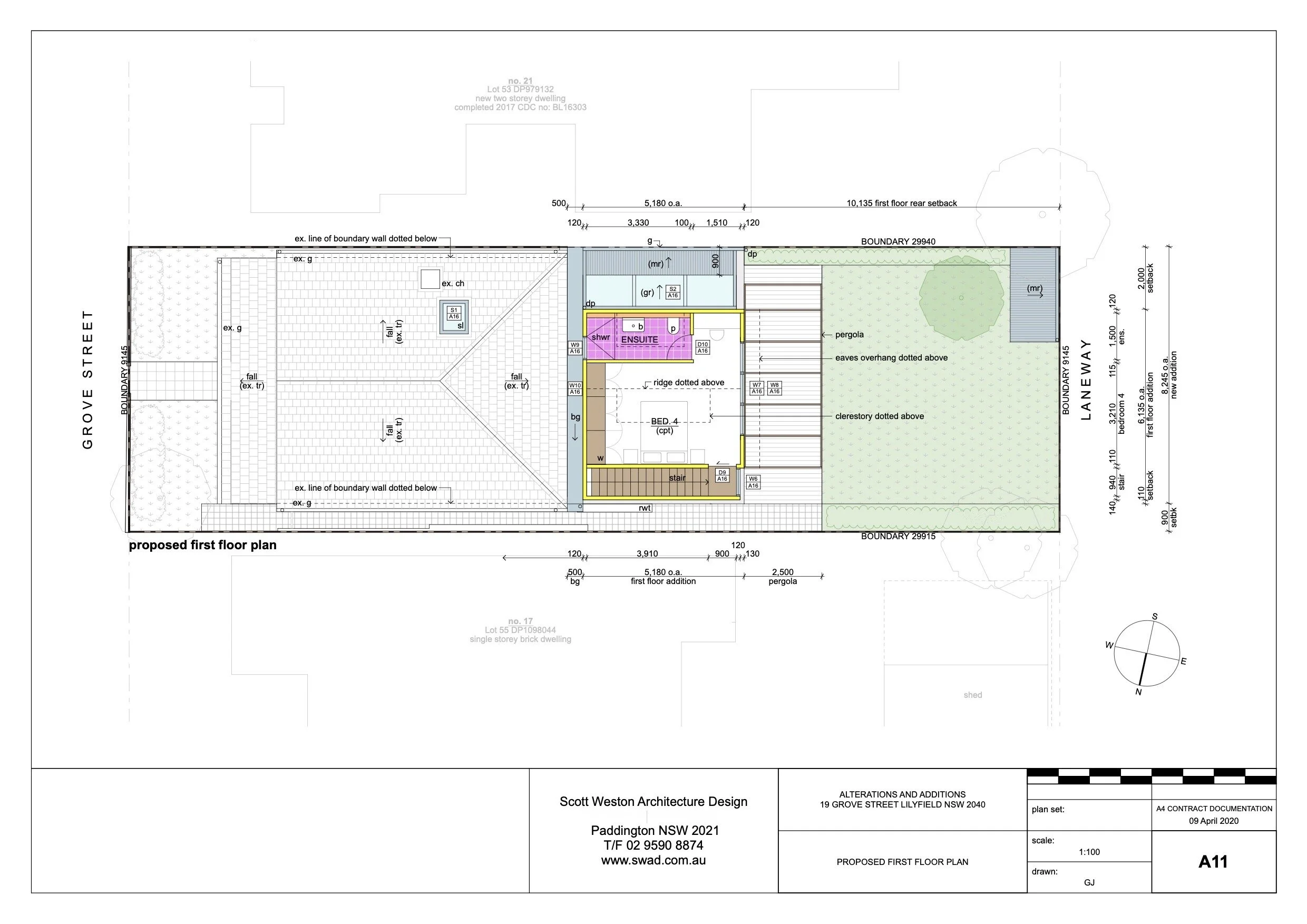
New two-storey addition.

Ground floor open plan living, kitchen and dining, family bathroom, separate laundry and three bedrooms.

First floor master bedroom and ensuite.

External landscaping.

DA Consent October 2021

Construction commenced June 2023

Practical Completion September 2024