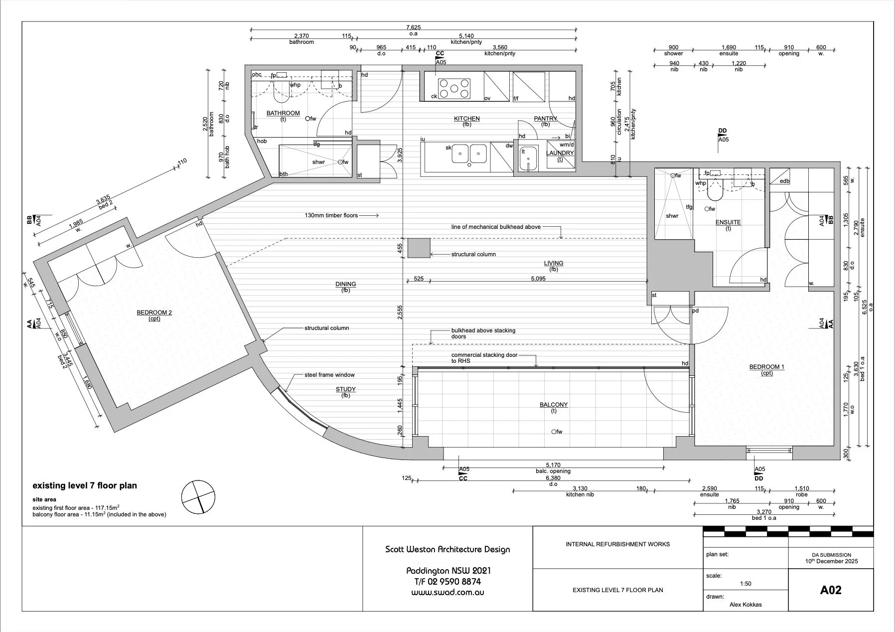
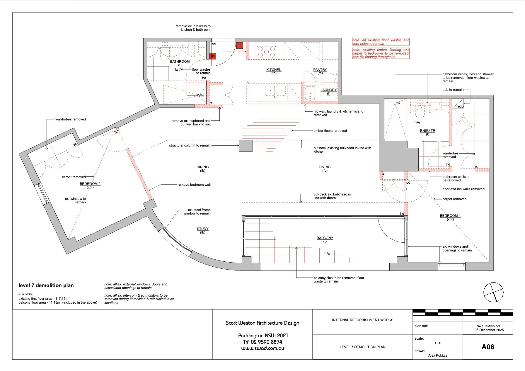
ALBA No. 2 located in the same building as our previous Client ALBA No. 1, located one floor above a single storey apartment, two bedrooms, two bathrooms and dramatic Sydney skyline and 180 degree views.

Client brief is to gut the existing apartment, improve the functional planning, capture northern light and design bespoke joinery components to all spaces and innovative space saving solutions and clutter free.

Concepts A and B presented November 2025 including 3D renders and architectural study models.

Concept A dramatic and moody in walnut veneers, japanese tiled surfaces and steel framed doors.

Concept B cool restrained blond veneers, artisanal tiles, cork joinery and sliding/pivoting timber screen doors.

Concept C presented December 2025 an amalgamation of the preferred floor plan overlaid with rich moody materials and finishes.

CONCEPT OPTION A - Dark and Moody walnut finishes, japanese tiles and steel frame doors

CONCEPT OPTION A - Architectural study model scale 1:100

CONCEPT OPTION B - Cool restrained blond veneers, artisanal tiles, cork joinery and sliding/pivoting timber screen doors.

CONCEPT OPTION B - Architectural study model scale 1:100

OPTION C - Client approved design and amalgamation of Option B planning with Option A moody finishes.

Body Corporate Drawing Submission Approval January 2026

ALBA No. 2

REFURBISHMENT WORKS

Same building just a different Client.

Body Corporate Approval January 2026

DA City of Sydney February 2026

Contract Documentation pending DA approval March 2026